1階





















2F










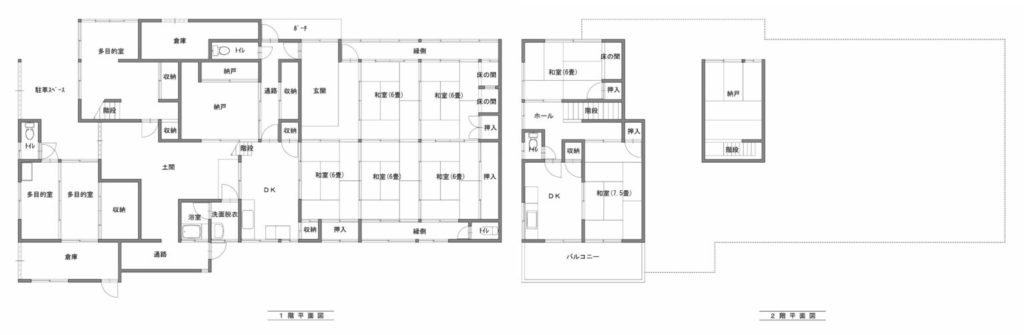
玄関が広く和室を中心とした農家型住宅かと思いきや、元住まわれていた方が家で仕事をされてた関係でしょうか、多目的室(元仕事部屋)のある、間取り的にもおもしろい家です。
ちなみに部屋は和室を中心に9部屋、キッチンも2か所あるとても大きな家です。
場所は国道191号線(加計街道)沿い。
バス停も目の前にあり、とても便利な場所だと思います。

そして家の中は和室中心の続き間が目を引きます。襖を外すと最大30畳の大部屋となり、この家の一番の特徴であり又魅力でしょう。
ですので住宅以外の利用も考えてもいいかもしれません。
ただ、住宅以外の利用で注意しておかなくてはいけないのは、住宅から不特定多数が利用する建物(特殊建築物)で利用する場合です。
その用途(不特定多数が利用する部分)の床面積が200m2を超える場合は、確認申請(用途変更)が必要になってきますので、要注意です。この辺りは安佐北区建築課で確認した方がいいでしょう。
いずれにしろ、広いおかげで住宅としてだけでなく、様々なことが考えられる家です。
| 種別 | 売買 |
| 売買価格 | 500万円 |
| 所在地 | 広島市安佐北区安佐町大字小河内字上小浜593-2、593-4 |
| 交通 | 槙原バス停より徒歩1分 |
| 都市計画/用途地域 | 都市計画区域外/無し |
| その他情報 | 土砂災害警戒区域(イエローゾーン) |
| 用途・構造 | 一戸建ての住宅、木造瓦葺2階建 |
| 延べ床面積 | 公簿 178.76m2 (54.07坪) 固定資産税証明書:254.08m2(76.85坪) |
| 敷地面積 | 公簿 212.15m2 (64.17坪) |
| 建築時期 | 公簿 昭和31年4月5日増築 |
| 土地権利 | 所有権 |
| 地目 | 宅地 |
| 間取り | 9部屋+2DK+納戸・倉庫 |
| 接面道路 | 国道 |
| 設備等 | 井戸、合併浄化槽、プロパンガス、水洗トイレ |
| 備考 | 現状渡し、田畑も引き取り希望 |
| 引渡/現況 | 空き家 |
| 取引形態 | 一般媒介 |