














2F





似島桟橋から徒歩7分の住宅です。とても丁寧に住まわれていたのが分かります。また空き家になっても定期的に風を通され、愛情をもって維持管理されておられたのでしょう、すぐに住める状態の家です。
縁側から眺める事の出来る庭には花壇と小さな畑があり、庭いじりとのんびりと花壇を見て過ごす時間が好きな方だったのだなぁ、と想像できます。


この家の浄化槽は合併浄化槽で、浴室やキッチン・洗面などの雑排水とトイレの汚水を合わせて綺麗にし、放流する仕組です。トイレの汚水のみ綺麗にする単独浄化槽が多い似島にあっては、衛生面においてもとてもいいと思います。
本当にいい家でお勧めなのですが、1つ残念なことに浴室や廊下を挟んだ6畳の和室辺りが、急傾斜地のレッドゾーンに入っています。その部分が気になる所ではありますが、直ぐに住めるとてもいい状態の家です。
| 種別 | 売買 |
| 売買価格 | 300万円 |
| 所在地 | 広島市南区似島町字家下乙5569番、5594番2、5596番 |
| 交通 | 似島桟橋より徒歩7分 |
| 都市計画/用途地域 | 都市計画区域外/無し |
| その他情報 | 土砂災害特別警戒区域・急傾斜地崩壊危険区域 |
| 用途・構造 | 一戸建ての住宅、木造瓦葺2階建 |
| 延べ床面積 | 公簿 250.34m2 (75.72坪) |
| 敷地面積 | 公簿3筆合計 299.95m2 (90.73坪) |
| 建築時期 | 公簿 不明 |
| 土地権利 | 所有権 |
| 地目 | 宅地(3筆) |
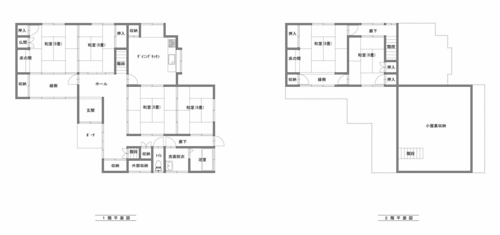
| 間取り | 6部屋+DK+小屋裏収納+納屋 |
| 接面道路 | 里道 |
| 設備等 | 上水道、合併浄化槽、プロパンガス、水洗トイレ |
| 備考 | 現状渡し |
| 引渡/現況 | 空き家 |
| 取引形態 | 一般媒介 |