母屋


















離れ












フェリー乗り場から徒歩1分という海の近い場所にあり、とても利便性がいい場所に建っています。
前の道路は狭いのですが、海側の道路に車をおいて大型家電等を運び込むのには問題ないと思います。
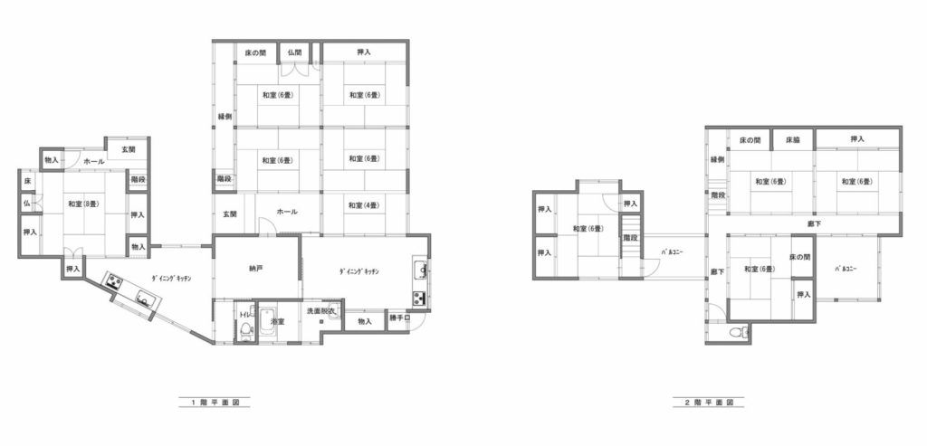
建物の築年数は不明ですが、似島では珍しい農家型の住宅で、和室を中心に10DKの部屋数があり、とても広い。しかもキッチンが2つ。縁側には虹梁があり、島にある家というより、中山間地にある家、という感じです。


1階の田の字型和室の襖を外すと24畳の和室となり、大人数で集まって何かするのには最適かもしれません。
構造的な家のイメージは、新旧の住宅が繋がっているイメージです。
道路から見て左側の母屋も使用しながら、右横に増築をし、最終的に繋げられたのでしょう。新しい方はとても綺麗な状態です。
古い方の住宅ですが、一部雨漏れや蟻害跡が見受けられますので、使用する場合は少し手を入れる必要がありそうです。

| 種別 | 売買 |
| 売買価格 | 350万円 |
| 所在地 | 広島市南区似島町字家下15番1、15番2、12番 |
| 交通 | 似島桟橋より徒歩1分 |
| 都市計画/用途地域 | 都市計画区域外/無し |
| その他情報 | 津波災害警戒区域 |
| 用途・構造 | 一戸建ての住宅、木造瓦葺2階建て |
| 延べ床面積 | 公簿 182.39m2 (55.17坪) |
| 敷地面積 | 公簿 198.33m2 (59.99坪) |
| 建築時期 | 公簿 不明 |
| 土地権利 | 所有権 |
| 地目 | 宅地 |
| 間取り | 10部屋+DK(2か所) |
| 接面道路 | 広島市道(幅員1.9m) |
| 設備等 | 上水道、合併浄化槽、プロパンガス、水洗トイレ、セントラル小型給湯器(灯油) |
| 備考 | |
| 引渡/現況 | 現況:空き家 |
| 取引形態 | 一般媒介 |